Location commerces et bureaux 2 pièces
Description du bien
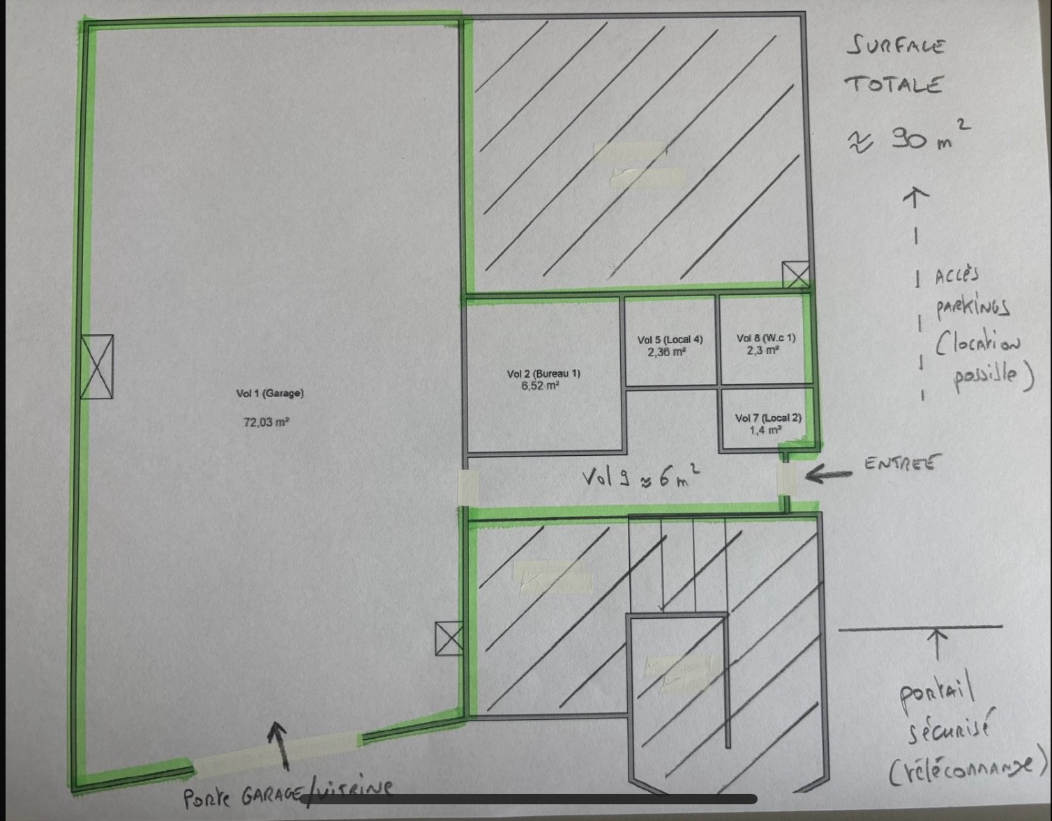
GAILLARD, Route de Genève, Sur le tracé du tram et à proximité de la douane de Moëllesulaz, local de 90m2 environ en pied d'immeuble à louer.
Ce local offre une belle visibilité grâce à son emplacement sur le tracé du tram.
Il composé comme suit :
- Une grande pièce de plus de 70m2
- Un bureau
- Un local technique
- Des dégagements
Ce local bénéficie de 2 points d'entrée.
La grande porte séquentielle actuelle est fonctionnelle. Au besoin, elle peut être remplacée par une vitrine.
Métiers de bouche interdit sur ce local.
Possibilité de louer des places de parking dans la cour de l'immeuble.
Disponible immédiatement. Ref. 39814
Loyer mensuel : 1600€
Provision pour charges mensuelle avec régularisation annuelle (incluant charges générales, eau froide) : 100€
Taxe foncière charge preneur
Dépôt de garantie : 3200€
Honoraires totaux charge locataire : 3150€
Consultez nos tarifs sur www.bouvet-cartier.com / Honoraires
Les informations sur les risques auxquels ce bien est exposé sont disponibles sur le site Géorisques : www.georisques.fr
Informations complémentaires
Informations non contractuelles ne pouvant engager le cabinet.
CC : Charges comprises.
* Surface approximative.
Dépenses énergétiques
Situation géographique
Location - Gestion locative - Syndic de copropriété

74100 Ambilly


