Location autres 6 pièces
Description du bien
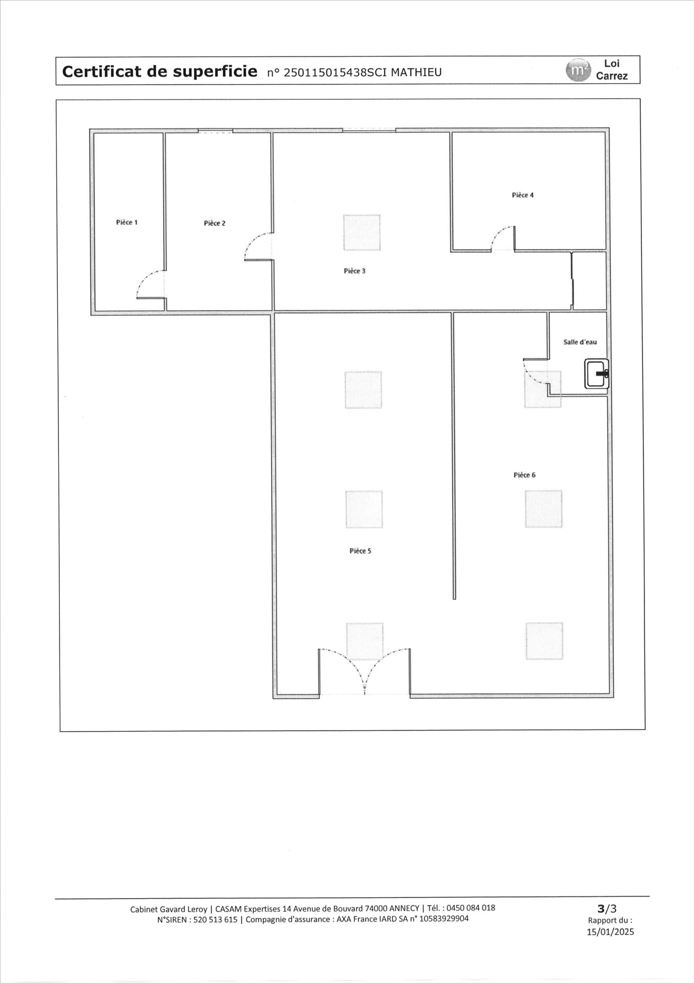
À LOUER — Local artisanal / Dépôt de 154 m² • Annemasse (74100)
Secteur Vernand – RDC
Situé 32 rue du Vernand, au rez-de-chaussée d’un petit immeuble, ce local de plus de 150 m² constitue une excellente opportunité pour des activités artisanales, de stockage ou de fabrication.
Avec son volume et son implantation en agglomération, il conviendra à des professionnels recherchant un local fonctionnel.
En plein secteur Vernand, ce local profite d'un accès rapide aux axes principaux d’Annemasse et constitue une base idéale pour une activité nécessitant surface + accessibilité sans recherche de prestations haut de gamme.
Pour le confort des équipes, la copropriété dispose d'un parking collectif pour les véhicules légers.
Intéressé(e) ? Parlons de votre activité !
L’équipe Bouvet Cartier Immobilier vous accompagne pour étudier votre projet et organiser une visite.
Disponible immédiatement, Ref. 39280
Loyer mensuel : 995€HT soit 1194€TTC
Provision pour charges mensuelle avec régularisation annuelle (incluant charges générales) : 50€
Soit un quittancement total de 1244€TTC
Taxe foncière facturée une fois par année : 960€ (Base année : 2024)
Surface : 153.83m2
Dépôt de garantie : 1990€
Honoraires charge locataire :
* Commercialisation : 995€HT soit 1194€TTC
* Rédaction de bail : 497.50€HT soit 597€TTC
* Etat des Lieux à la vacation au taux horaire de 144€TTC
Consultez nos tarifs sur www.bouvet-cartier.com / Honoraires
Les informations sur les risques auxquels ce bien est exposé sont disponibles sur le site Géorisques : www.georisques.fr
Informations complémentaires
Informations non contractuelles ne pouvant engager le cabinet.
CC : Charges comprises.
* Surface approximative.
Dépenses énergétiques
Situation géographique
Location - Gestion locative - Syndic de copropriété

74100 Ambilly


